| 物件概要 | 岐阜県揖斐郡大野町黒野2309-10 | 2,611万円(税込) |
|---|
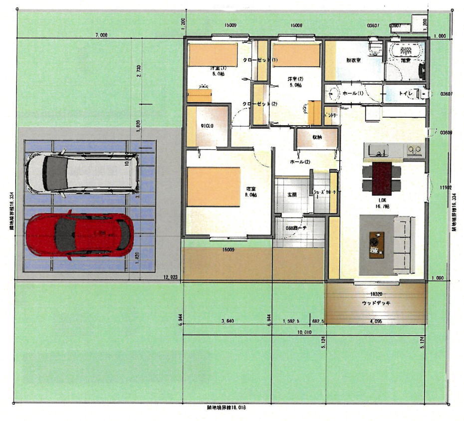
| 土地面積 | 325.31㎡(98.40坪) | 間取り | 3LDK |
|---|---|---|---|
| 建物面積 | 87.36㎡(26.42坪) | 引き渡し | 相談 |
| 都市計画 | 非線引区域 | 用途地域 | 無指定 |
| 地目 | 宅地 | 私道負担 | 無 |
| 建ぺい率 | 70% | 容積率 | 400% |
| 設備・施設 | 上水道 浄化槽 中電 プロパンガス | ||
| 建物構造 | 木造瓦葺平家建 | ||
| 接 道 | 西側 公道 幅員 約 4m に 約 17m 接面 |
||
| 取引態様 | 売主 | ||
| 備 考 | 校区 : 大野小学校 ・大野中学校 大野バスセンター 徒歩約8分 カーテン ・ エアコン1台 付! ※外構工事別途 |
||
| 【外観イメージ】 | |
|---|---|
![]() |
|
| 【立面図イメージ】 | |
![]() |
|
| 【配置図イメージ】 | |
![]() |
|
| 【間取り】 | |
|
|
| 【地図】 | |
|
|
|





